Upravit vyhledávání Zpět na výběr

Byt 3+1/L, 85 m2, panel, DV, Praha Chodov

14900 Praha 4, Chodov

B Velmi úsporná
8 500 000 Kč
vč. provize a právního servisu

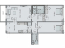
Byt 3+1/L, 85 m2, který se nachází ve 2. patře panelového domu v Praze 4 - Chodov. Byt je po úpravách - Kuchyňská linka s kombinovaným sporákem, koupelna s rohovou vanou, WC samostatně, jádro vyzděné, stoupačky v plastu, nová plastová okna, stínící rolety, na podlahách plovoucí podlaha, lino a dlažba. Orientace oken na Z a V. K bytu náleží lodžie a sklep. Dům je po kompletní rekonstrukci - Nová fasáda vč. zateplení, nová střecha, nová plastová okna, stoupačky v plastu, nový výtah, kamerový systém v domě, nové vchodové dveře, zvonky a schránky, úprava společných prostor. Byt je ihned k dispozici. Výborná dopravní dostupnost - 5 min. na metro C zast. Chodov. Nemovitosti je v DV - anuita splacena.

ID zakázky 233637
Aktualizace 03.02.2026
Dispozice 3+1
Stav objektu velmi dobrý
Vlastnictví družstevní
Podlahová plocha 85

Máte o nabídku zájem?

Martin Veselý

V oblasti realit se pohybuji od roku 2010 a za tu dobu jsem zrealizoval už více než 450 prodejů nemovitostí. Hned od začátku mé profese jsem si plně vědom toho, že za každým realizovaným prodejem není "jen" nemovitost, ale hlavně příběh lidí, pro něž se v mnoha případech jedná o zásadní životní krok. Proto k mé práci přistupuji s velkým respektem. Za dobu mé činnosti jsem získal spoustu zkušeností, díky kterým umím pomoct i s komplikovanějšími případy (např. nemovitosti v exekuci, insolvenci, apod.). Mluvím anglicky a německy na profesionální úrovni.
Práce je pro mě radost, jsem flexibilní, komunikativní a dá se říct, že mé příjmení mě definuje :-)

774 110 007
S financováním této nemovitosti vám je k dispozici hypoteční průvodce
Kontaktujte nás
S financováním této nemovitosti vám je k dispozici hypoteční průvodce

K nemovitosti zajistíme

Díky našim poradcům pro Vás zajistíme nejvýhodnější financování nového domova: Pokud se rozhodnete nemovitost nejen kupovat. ale i prodávat. doporučujeme vše řešit u nás v rámci jedné služby, abyste se vyvarovali maxima rizik.

Zajistíme nejen výhodný tarif na míru, ale i kompletní přehlášení a administrativu s tím spojenou. Nemusíte se tak o nic starat, potřebné dokumenty a převod na nového vlastníka Vaší nemovitosti zajistíme za Vás.

Chcete ukončit bez starostí i jeden z posledních kroků, rádi Vás přestěhujeme do nového domova.

Pokud by se náhodou stalo, že byste tuto nemovitost nekoupili, využijte náš produkt Dohoda o vyhledání, který Vám pomůže nejvhodnější nemovitost najít.

Podobné nabídky

Našli jsme pro vás 1 nemovitostí
Reference
Leona Výborná
Spolupráce s panem Martinem Veselým předčila naše očekávání. Celý proces koupě nemovitosti proběhl hladce hlavně díky jeho službám. Byl vždy k dispozici a komunikace s ním byla bezproblémová. Také po převodu vlastnictví nám ochotně poskytl podporu při předání nemovitosti a v souvisejících záležitostech. V případě potřeby se na pana Veselého určitě opětovně obrátíme.
24. 11. 2025
Petr Prachař
Rád bych se podělil o dobrou zkušenost s realitním makléřem. Martin Veselý byl druhý realitní makléř, který mě oslovil a viděl můj byt. Všechno mi velmi podrobně vysvětlil a upozornil mě na všechna právní úskalí. Aktivně hledal možné kupce a zároveň mi dal možnost najít si vlastní kupce. Musím říct, že najít kupce je fuška a moc mi to nešlo. Práce s lidmi je vždycky složitá. Martin mě průběžně informoval o všech uskutečněných prohlídkách se zájemci o můj byt. A pak to přišlo - našel se zájemce. Celý proces šel hladce, a když jsem měl pocit, že by něco drhlo, tak mi začal zvonit telefon a kdo mi volal? Ano Martin, asi umí číst myšlenky :-). Né, není to mág, je to profík. Diky moc.
24. 11. 2025
Tereza Pilková
S Martinem Veselým jsme spolupracovali už dvakrát během krátké doby - nejdřív nám pomohl s koupí investičního bytu a potom ho dokázal i přes složitější podmínky pronajmout vhodnému nájemci. Vždycky s námi komunikoval rychle, ochotně a s přehledem. Byla to příjemná spolupráce a Martina můžeme jen doporučit.
21. 10. 2025
Alena Haklová
Profesionální přístup makléře pana Veselého a naprostá spokojenost s jednáním a prodejem bytu.
06. 10. 2025
Alexey Seleznev
Moc rád jsem spolupracoval s panem Veselým. Dostal jsem přesně tu kvalitu služeb a podporu během procesu prodeje bytu v ulice Olšanská, na kterou jsem se vlastně těšil. Rád bych doporučil realitního makléře pana Veselého komukoliv kdo chce prodat svoji nemovitost rychle a kvalitně.
11. 09. 2025
Sylva Cirková
Ráda bych poděkovala panu Martinu Veselému za skvělou spolupráci. Vše probíhalo na profesionální úrovni. Oceňuji především lidský přístup, rychlou a vstřícnou komunikaci. Doporučuji každému,  kdo hledá spolehlivého makléře.
02. 09. 2025
Kateřina Senners
Pan Martin Veselý z realitní kanceláře Bidli mi skvěle pomohl s prodejem bytu. O vše se postaral, i když jsem byla v zahraničí. Profesionální, spolehlivý, empatický a umí výborně vyjednávat. Celý proces díky němu proběhl hladce. Vřele doporučuji! ⭐⭐⭐⭐⭐
19. 08. 2025
Veronika Votavová
Rádi bychom poděkovali panu Veselému za profesionální zprostředkování koupě našeho bytu. Od samého začátku jsme oceňovali jeho vstřícný přístup, ochotu vše trpělivě vysvětlit a schopnost reagovat na naše dotazy rychle a srozumitelně. Díky tomu pro nás byl celý proces koupě přehledný a proběhl bez zbytečného stresu. Velmi si vážíme transparentní komunikace a také pomoci s veškerou administrativou, která je s koupí nemovitosti spojená. Pan Veselý se postaral o hladký průběh celé transakce a ušetřil nám spoustu starostí. Celou spolupráci hodnotíme jako mimořádně pozitivní a pana Veselého můžeme doporučit každému, kdo hledá spolehlivého, zodpovědného a zkušeného realitního makléře. Votavovi
17. 08. 2025
Mikhail Lyssak
Realitního makléře Martina Veselého jsme si vybrali pro prodej bytu. Měl profesionální přístup a vše zajistil bez jakýchkoliv problémů - od inzerce až po převod peněz. Naprostá spokojenost, můžeme jen doporučit.
14. 08. 2025
Ludmila Zahálková
Pan Veselý byl velmi profesionální.Nic nebyl problém,byla s ním velmi příjemná spolupráce. Vřele doporučuji.
26. 05. 2025

Používáme cookies!

Tyto stránky používají a ukládají soubory cookies. Některé jsou nezbytné pro jejich správné fungování (tzv. technické cookies). Dále tyto stránky využívají marketingové a analytické cookies pro zkvalitnění našich služeb a přizpůsobení zobrazovaného obsahu. Pro jejich využití je nutný Váš souhlas. Více informací o cookies.