Upravit vyhledávání Zpět na výběr

Prodej novostavby RD, pozemek 1034 m2- Srbeč

27065 Srbeč (okres Rakovník)

B Velmi úsporná
9 300 000 Kč

Nabízíme k prodeji novostavbu přízemního rodinného domu v klidné části obce Srbeč, okres Rakovník. Dům je situován na prostorném pozemku o výměře 1034 m2 a je ideální volbou pro rodinné bydlení v příjemném a klidném prostředí.

V lokalitě je na výběr více rodinných domů s jednotnou moderní dispozicí. K dispozici jsou jak dřevostavby, tak zděné domy, díky čemuž si můžete zvolit variantu, která nejlépe odpovídá vašim požadavkům na bydlení.

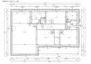
Rodinný dům je řešen jako jednopodlažní objekt půdorysného tvaru "L" se sedlovou (valbovou) střechou. Hlavní vstup do domu je situován z pravé strany objektu přes vstupní zádveří. Ze zádveří je přístup do technické místnosti a do chodby, která slouží jako hlavní komunikační prostor domu.

Dispozičně dům nabízí obývací pokoj s kuchyňským koutem a přímým vstupem na terasu a zahradu, dále ložnici, dva samostatné pokoje se šatnou, koupelnu, samostatné WC a technickou místnost.

Technické parametry a vybavení:

* konstrukce: kvalitní zděná stavba z systému Ytong s nadstandardním zateplením a důrazem na energetickou úspornost. Stabilní železobetonová základová deska, valbová střecha s dřevěnými vazníky, trojskla a podlahové vytápění zajišťují dlouhou životnost i komfortní bydlení.
* podlahové vytápění v celém domě
* ohřev teplé vody: tepelné čerpadlo
* možnost instalace krbových kamen - připraven komín Schiedel
* voda: napojení na obecní vodovod
* kanalizace: napojení na ČOV
* plastová okna s izolačními trojskly

Na pozemku je prostor pro vybudování terasy, zahrady, parkovacího stání, případně dalších úprav dle představ budoucího majitele.

Dopravní dostupnost:
Obec má velmi dobrou dostupnost do Prahy.
Napojení na je možné po rychlostních komunikacích D6 a D7, přičemž dojezdová vzdálenost na okraj Prahy je přibližně 35minut autem dle dopravní situace.

Lokalita:
Srbeč je klidná obec obklopená přírodou, lesy a loukami, vhodná pro rodinné bydlení i rekreaci. V obci se nachází základní občanská vybavenost (mateřská škola, obchod, obecní úřad), další služby jsou dostupné v Rakovníku. Lokalita nabízí klidné a bezpečné prostředí s možností procházek, cyklistiky a výletů do okolí.

Dům je prodáván ve stavu před dokončením interiéru. Cena nezahrnuje kuchyni, zařizovací předměty, podlahy, interiérové dveře, obklady ani dlažby, aby si nový majitel mohl interiér dokončit dle vlastního vkusu a rozpočtu.

Nemovitost je kompletně napojena na inženýrské sítě (voda, elektřina, ČOV) a aktuálně se nachází ve fázi těsně před kolaudací.

Financování hypotečním úvěrem je připraveno. Hypoteční poradce nemovitost osobně navštívil, je detailně seznámen s projektovou dokumentací a má k dispozici veškeré podklady potřebné pro zpracování odhadu. Je připraven aktivně jednat s bankami s cílem zajistit pro Vás co nejvýhodnější úrokovou sazbu i optimální nastavení splátek.

Podrobnější informace naleznete na Facebookové stránce Rodinné domy Rakovnicko - Džbán. Dále více na webu rdsrbec.

ID zakázky 233719
Aktualizace 21.04.2026
Druh objektu cihlová nebo skeletová
Stav objektu novostavba
Užitná plocha 118
Poloha objektu samostatný

Máte o nabídku zájem?

Eva Hrabáková

V realitách se pohybuji od roku 2004. Ve společnosti Bidli jsem od roku 2016 a nikdy bych neměnila. Je to práce, co mě naplňuje a baví, preferuji lidský přístup.

774 110 007
S financováním této nemovitosti vám je k dispozici hypoteční průvodce
Kontaktujte nás
S financováním této nemovitosti vám je k dispozici hypoteční průvodce

K nemovitosti zajistíme

Díky našim poradcům pro Vás zajistíme nejvýhodnější financování nového domova: Pokud se rozhodnete nemovitost nejen kupovat. ale i prodávat. doporučujeme vše řešit u nás v rámci jedné služby, abyste se vyvarovali maxima rizik.

Zajistíme nejen výhodný tarif na míru, ale i kompletní přehlášení a administrativu s tím spojenou. Nemusíte se tak o nic starat, potřebné dokumenty a převod na nového vlastníka Vaší nemovitosti zajistíme za Vás.

Chcete ukončit bez starostí i jeden z posledních kroků, rádi Vás přestěhujeme do nového domova.

Pokud by se náhodou stalo, že byste tuto nemovitost nekoupili, využijte náš produkt Dohoda o vyhledání, který Vám pomůže nejvhodnější nemovitost najít.

Reference
Petr Weikert
Oceňuji vstřícné a profesionální jednání, žádné zbytečné prodlevy a dodržení daného slova.
03. 08. 2022
Helena Beránková
Vážení, realitní kanceláře jsou různě kritizované a do spolupráce jsem vstoupila s malou důvěrou. Nyní musím vyjádřit své veliké poděkování za ochotu, vstřícnost a pochopení paní Evě Hrabakové, která mne předala do následné spolupráce panu Markovi Duckému z oblasti Litoměřice. Pan Ducky M. naplnil slova v logu společnosti ,,bidli se vším všudy" Opravdu spolupráce se vším všudy ve všem. Ochota, vstřícnost, spolupráce skvělá. Prace obou makléřů výborná. Byla jsem maximálně spokojená. Tímto ještě jednou děkuji za oporu v realizaci mého přání. BIDLI doporučuji všem 🍀 Berankova Helena
03. 08. 2022
Petr Weikert
„Oceňuji vstřícné a profesionální jednání, žádné zbytečné prodlevy a dodržení daného slova." Petr Weikert
03. 08. 2022
Helena Beránková
Vážení, realitní kanceláře jsou různě kritizované a do spolupráce jsem vstoupila s malou důvěrou. Nyní musím vyjádřit své veliké poděkování za ochotu, vstřícnost a pochopení paní Evě Hrabákové, která mne předala do následné spolupráce panu Markovi Duckému z oblasti Litoměřice. Pan Ducky M. naplnil slova v logu společnosti ,,bidli se vším všudy". Opravdu spolupráce se vším všudy ve všem. Ochota, vstřícnost, spolupráce skvělá. Práce obou makléřů výborná. Byla jsem maximálně spokojená. Tímto ještě jednou děkuji za oporu v realizaci mého přání. BIDLI doporučuji všem. Beránková Helena
01. 06. 2022
Jaroslav Kostrhoun
Dobrý den, rád bych prostřednictvím reference vyjádřil poděkování panu Duckému, Janě Vápeníkové, Evě Hrabákové a Petru Vyšínovi za zprostředkování koupě bytové jednotky. Spolupráce byla plné profesionální a k mojí spokojenosti. Rovněž děkuji paní Vápeníkové za pomoc s vyřízením hypotečního úvěru. S pozdravem Jaroslav K.
05. 04. 2022
Barbora Nohejlová
S prodejem svého bytu jsem byla velmi spokojená, speciální dík patří makléřce Evě Hrabákové, která se o Vše postarala. Barbora Nohejlová
15. 11. 2021
Claus Steffensen
Děkuji paní Evě Hrabákové a Miroslavě Trčkové ze společnosti Bidli za vyřešení komplikované situace při převedení energií elektřina/plyn. Se společností Bidli řeším v rámci svého bydlení úplně Vše a jsme s manželem velmi spokojeni. Jana a Claus Steffensen
12. 11. 2021
Ladislava Váchová
A příběh pokračuje........ Již v nedávné minulosti jsme měli možnost ocenit profesionalitu, pracovitost a lidskost paní Evy Hrabákové. Poté, co se nám s její pomocí podařilo prodat rodinný dům, nám pomohla prodat i stavební pozemek. Pravda je ta, že jsme se o to pokoušeli nejdříve nějakou dobu samostatně, bez realitní kanceláře. Ale nedařilo se nám setkat se s žádným "solidním" zájemcem. Takže jsme si nakonec řekli, že bude nejlepší opět využít služeb společnosti BIDLI, konkrétně spolupráce s paní Hrabákovou. Chtěli bychom jí touto cestou poděkovat opět za pracovní nasazení, se kterým se prodeje pozemku ujala. Především jí patří poděkování za to, že nás přesvědčila o tom, že v této nelehké době je nutné se obrnit trpělivostí a díky tomu jsme za prodej pozemku utržili výrazně vyšší cenu, než jakou jsme původně očekávali. A proto...... neváhejte oslovit společnost BIDLI při řešení téměř všeho, co se týká bydlení. S BIDLI už dnes máme i pojištěný dům, pomoc jsme dostali i při pojištění osobních vozů, uzavřeli jsme smlouvu na energie, a nyní se chystáme na spolupráci při realizaci fotovoltaiky. Díky paní Hrabákové máme vždy další a další informace o tom, jaké další formy spolupráce lze u BIDLI využít. S pozdravem Ladislava a Pavel Váchovi
12. 11. 2021
Veronika Macke
Spolupráci s Bidli a paní Hrabákovou jmenovitě můžeme všem vřele doporučit. Celý proces prodeje rodinného domu pro nás perfektně zorganizovala, její rady a doporučení nám pomohly v nelehkém rozhodování. Její citlivý a férový přístup jsme během prodeje oceňovali nejen my, ale i všichni zájemci o nemovitost. Děkujeme a paní Hrabákovou s celým, velmi profesionálním Bidli týmem, moc doporučujeme. Budete v dobrých rukou. Martin a Veronika Macke
11. 10. 2021
Veronika Hofmanová Dyková
Když jsme se rozhodli pořídit baráček byli jsme nervózní z nekonečného papírování a lítání po všech čertech, ale díky paní Hrabákové jsme měli vždy vše předpřipravené a vše šlo jako po másle :)) . Kdykoliv jsme potřebovali byla paní Hrabáková nápomocná a spolupráce byla velmi příjemná a milá. Jsem moc ráda, že jsme mohli spolupracovat právě s ní a ještě jednou děkujeme! :)
27. 07. 2021

Používáme cookies!

Tyto stránky používají a ukládají soubory cookies. Některé jsou nezbytné pro jejich správné fungování (tzv. technické cookies). Dále tyto stránky využívají marketingové a analytické cookies pro zkvalitnění našich služeb a přizpůsobení zobrazovaného obsahu. Pro jejich využití je nutný Váš souhlas. Více informací o cookies.