Upravit vyhledávání Zpět na výběr

Pronájem bytu 2+kk 44 m²

54954 Police nad Metují (okres Náchod)

G Mimořádně nehospodárná
12 500 Kč
za měsíc

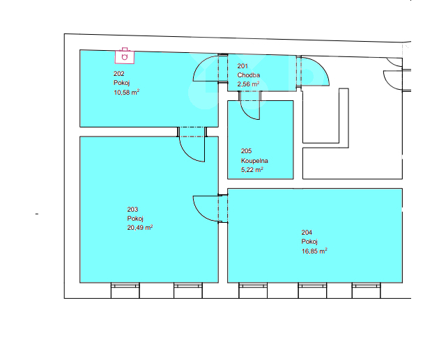
Nabízím k pronájmu světlý byt o dispozici 2+1 a velikosti 44 m² v ulici Na Babí naproti škole. Celý dům prochází kompletní rekonstrukcí. Plánované nastěhování je k 1.4.2026. Byt se nachází v přízemí domu.

Byt hledá svého prvního nájemníka. Kuchyň bude vybavena kuchyňskou linkou se sporákem a dřezem a lednicí. Koupelna disponuje sprchou, umyvadlem a přípojkou na pračku.

Lokalita nabízí klidné bydlení v docházkové vzdálenosti do centra města, s kompletní občanskou vybaveností v okolí (obchody, služby, MHD).

Byt je vhodný pro jednotlivce, pár či menší rodinu.
Nájem nezahrnuje platbu za energie. Rekonstrukce probíhá v nízkoenergetickém standardu

K nastěhování od 1.4.
Nájem: 12500 Kč/měsíc
Kauce: 12.500 Kč
Provize realitní kanceláři: 12.500 Kč

ID zakázky 234379
Aktualizace 09.03.2026
Dispozice 2+1
Stav objektu V rekonstrukci
Vlastnictví osobní
Podlahová plocha 44

Máte o nabídku zájem?

Stanislav David

774 110 007
S financováním této nemovitosti vám je k dispozici hypoteční průvodce Michal Zelenka
Kontaktujte nás
S financováním této nemovitosti vám je k dispozici hypoteční průvodce Michal Zelenka

K nemovitosti zajistíme

Díky našim poradcům pro Vás zajistíme nejvýhodnější financování nového domova: Pokud se rozhodnete nemovitost nejen kupovat. ale i prodávat. doporučujeme vše řešit u nás v rámci jedné služby, abyste se vyvarovali maxima rizik.

Zajistíme nejen výhodný tarif na míru, ale i kompletní přehlášení a administrativu s tím spojenou. Nemusíte se tak o nic starat, potřebné dokumenty a převod na nového vlastníka Vaší nemovitosti zajistíme za Vás.

Chcete ukončit bez starostí i jeden z posledních kroků, rádi Vás přestěhujeme do nového domova.

Pokud by se náhodou stalo, že byste tuto nemovitost nekoupili, využijte náš produkt Dohoda o vyhledání, který Vám pomůže nejvhodnější nemovitost najít.

Podobné nabídky

Našli jsme pro vás 1 nemovitostí

Používáme cookies!

Tyto stránky používají a ukládají soubory cookies. Některé jsou nezbytné pro jejich správné fungování (tzv. technické cookies). Dále tyto stránky využívají marketingové a analytické cookies pro zkvalitnění našich služeb a přizpůsobení zobrazovaného obsahu. Pro jejich využití je nutný Váš souhlas. Více informací o cookies.